Academic Project (ENVR 3011)
Individual Project, 2022
Toronto, Canada
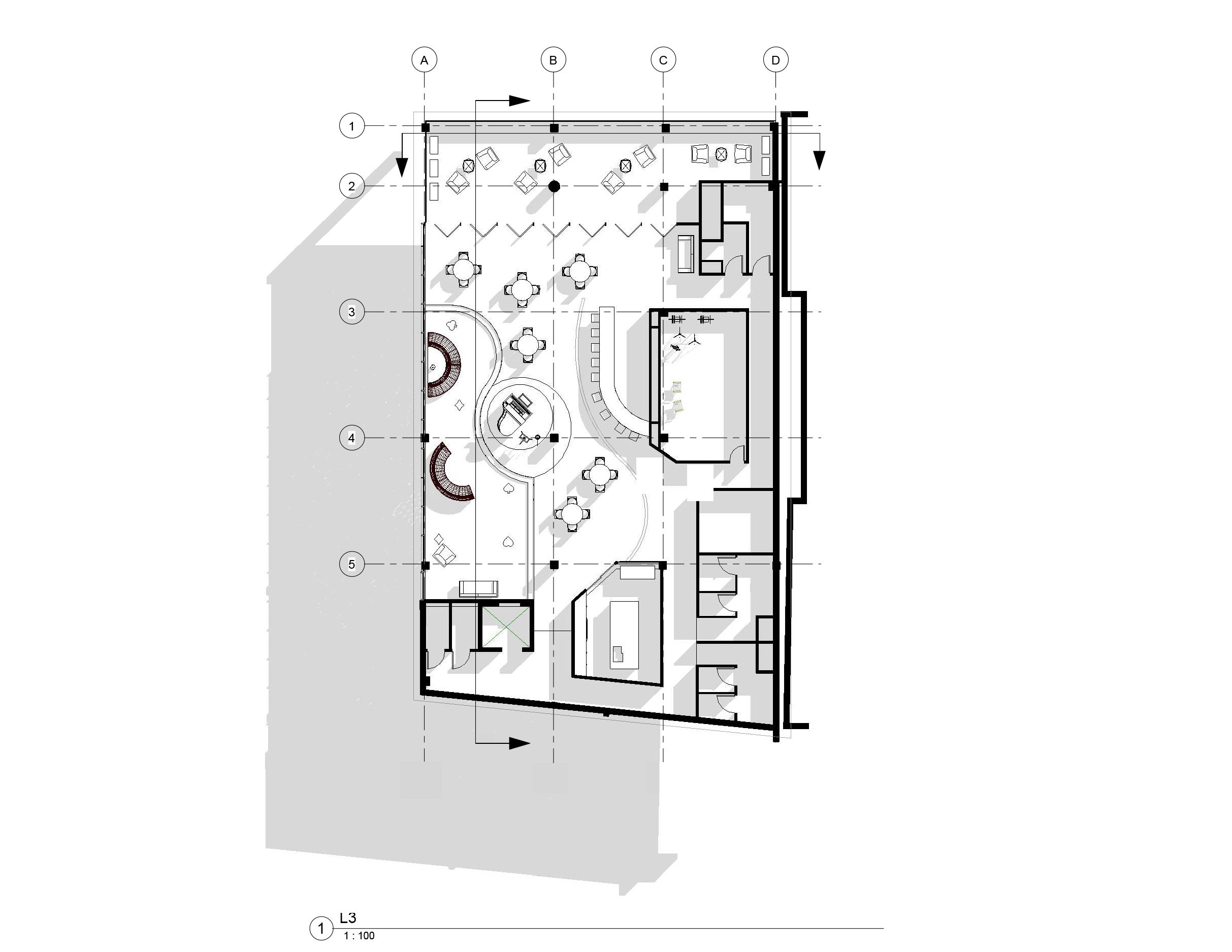
This Toronto interior project for Hilary MacMillan transforms a top-floor space into a versatile venue for events, photoshoots, and private gatherings. Featuring a sunken lounge, bar, and studio, the design blends modern elegance with timeless cinematic character, opening to a balcony with skyline views.







